Neubau Institutsgebäude und Technikum IEG
Zittau, 2025-2028
Kategorie:
Bildung
Für die Standorterweiterung des IEG in Zittau sollen an zwei innerstädtischen Standorten zwei Institutsgebäude errichtet werden.
Das Bürogebäude wird dabei in den Standort der Zittauer Hochschule integriert und neben dem benachbarten Partnerinstitut des Fraunhofer IWU angesiedelt.
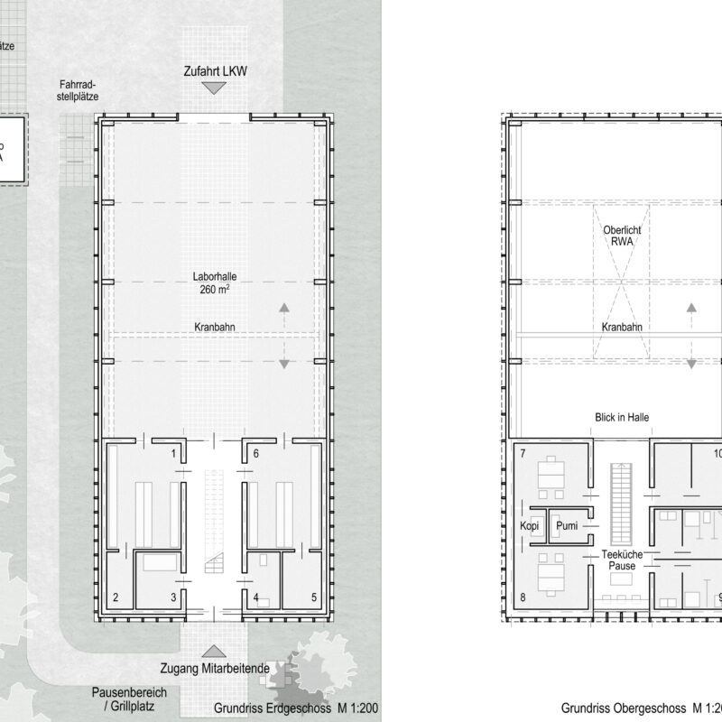
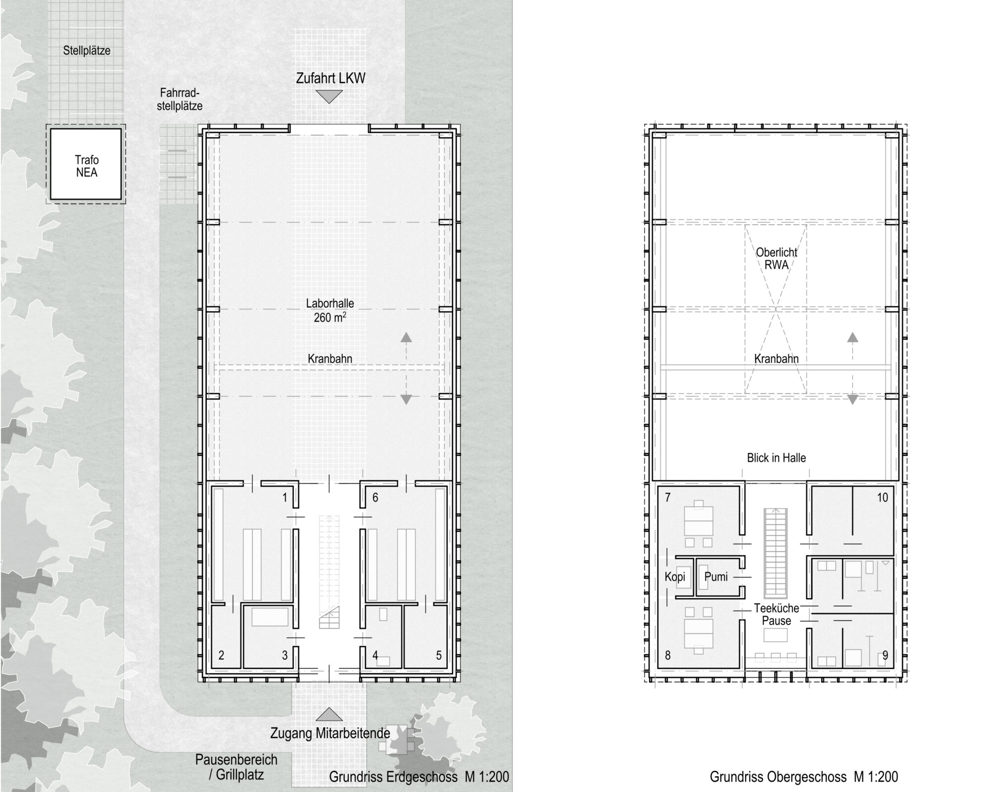
Das Technikum wird in unmittelbarer Nähe zu dem Hauptstandort der Zittauer Stadtwerke erreichtet um mit diesen für die zu erforschenden Energiekompetenzen eine bestmöglichen Standort zu erzielen.
Die beiden Gebäude sind in Modul- und Holzbauweise geplant und sollen dem Institutsmitarbeitenden neue Arbeitsplätze bieten sowie den neuesten Versuchsstände zur Erforschung der Energie- und Geothermie zu ermöglichen.

















